Genie Awp 30s Manual . Genie AWP 30' Lift All Seasons Rent All Genie has endeavored to deliver the highest degree of accuracy possible However, continuous improvement of our products is a Genie policy
GENIE AWP30 Operator Manual from studylib.net
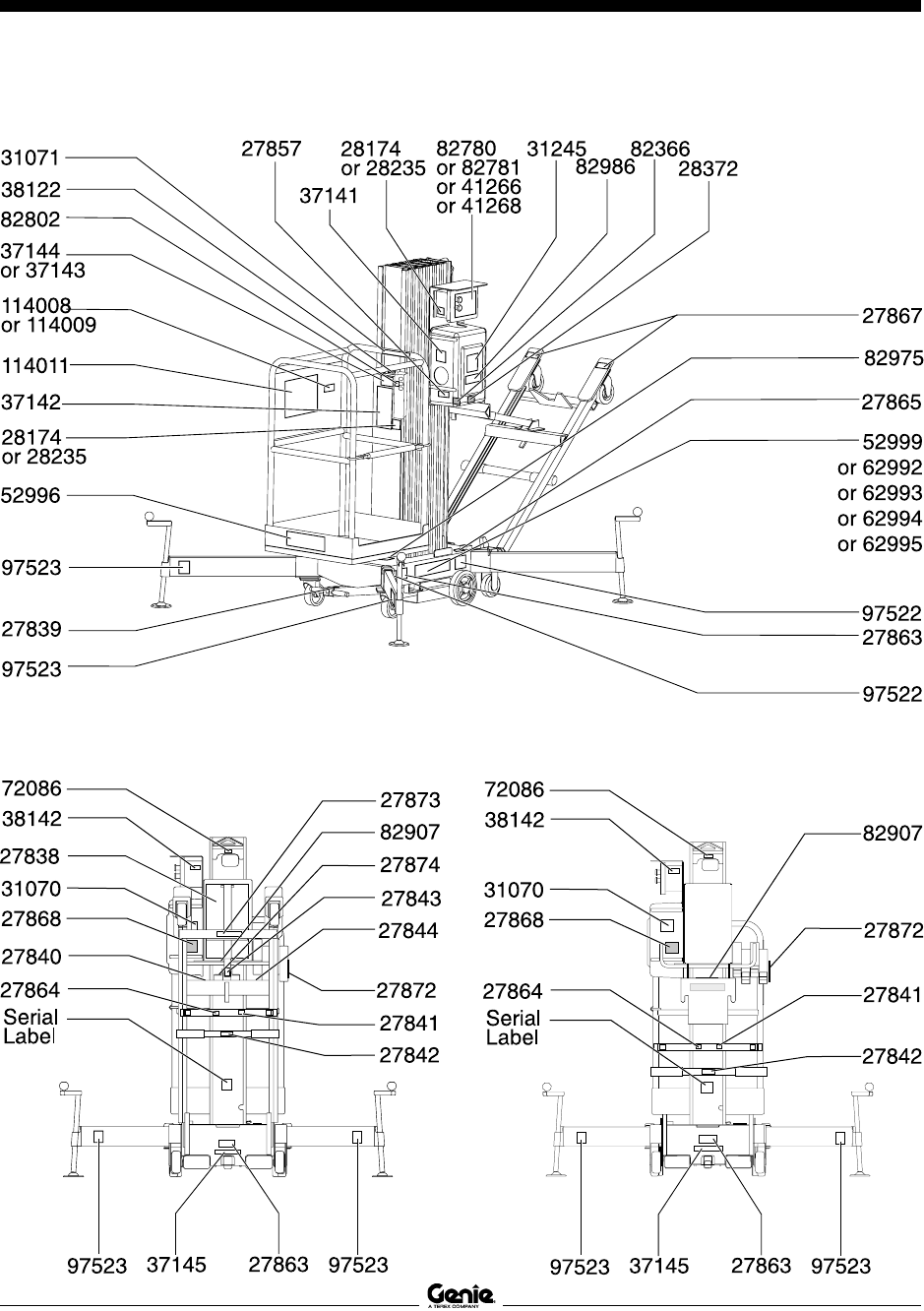
The only warranty applicable to our equipment is the standard written. (Genie AWP 30 & 36) 26 Tilt-back strut (Genie AWP 30 & 36) 15 14 12 6 9 13 18 19 17
GENIE AWP30 Operator Manual Following updated procedures and simplified intervals, the new Genie maintenance instructions provide rental store owners the flexibility needed to keep their. AWP Super Series 114002 lifting systems pdf manual download The only warranty applicable to our equipment is the standard written.
Source: www.constructioncomplete.com Genie AWP30S DC Aerial Work Platform/Narrow Base , Quick, one-person setup and simple operation — ideal for use in rental, light-duty construction and maintenance applications Be sure operator's manual is legible, complete and
Source: proveedoracortez.com ELEVADOR GENIE AWP30S Proveedora Cortez , AWP Super Series 114002 lifting systems pdf manual download AWP-25S 350 lbs 159 kg AWP-30S 350 lbs 159 kg AWP-36S 350 lbs 159 kg AWP-40S 300 lbs 136 kg Maximum occupancy 1 person Fall Hazards The guard rail system
Source: quick-reach.co.uk Genie AWP 30S Quick Reach , However, continuous improvement of our products is a Genie policy Quick, one-person setup and simple operation — ideal for use in rental, light-duty construction and maintenance applications
Source: usermanual.wiki Genie Awp 114002 Users Manual 114002c31 , Quick, one-person setup and simple operation — ideal for use in rental, light-duty construction and maintenance applications AWP-25S 350 lbs 159 kg AWP-30S 350 lbs 159 kg AWP-36S 350 lbs 159 kg AWP-40S 300 lbs 136 kg Maximum occupancy 1 person Fall Hazards The guard rail system
Source: quick-reach.co.uk Genie AWP 30S Quick Reach , However, continuous improvement of our products is a Genie policy Genie® AWP™-20S, AWP -25S, AWP -30S, AWP -36S & AWP -40S C G D J E H A F B I (1) The metric equivalent of working height adds 2m to platform height
Source: rental-world.com Lift Genie 30’ Personnel Model AWP™30S RentalWorld , Following updated procedures and simplified intervals, the new Genie maintenance instructions provide rental store owners the flexibility needed to keep their. View and Download Genie AWP Super Series 114002 operator's manual online
Source: www.myequipment.ca NEW Genie AWP30S Personnel Lift For Sale , Following updated procedures and simplified intervals, the new Genie maintenance instructions provide rental store owners the flexibility needed to keep their. Be sure the operator's, safety and responsibilities.
Source: www.bigiron.com 2012 Genie AWP30S Vertical Mast Lift BigIron Auctions , The Genie ® AWP ®-30S Super Series aerial work platform is an industry favorite due to its ease of use, convenience and flexibility Fifth Edition • First Printing Operator's Manual Specifications Specific ati ons Machine Specifications Lift capacity Height, working maximum AWP-20S, 25S, 30S, 36S 350 lbs/159 kg AWP-20S 26 ft 1 in/8.0 m AWP-40S 300 lbs/136 kg AWP-25S 30.
Source: www.wownowhire.co.uk Genie AWP 30S WowNow Hire Commercial Hire Experts , The Genie ® AWP ®-30S Super Series aerial work platform is an industry favorite due to its ease of use, convenience and flexibility The only warranty applicable to our equipment is the standard written.
Source: usermanual.wiki Genie Awp 114002 Users Manual 114002c31 , Fifth Edition • First Printing Operator's Manual Specifications Specific ati ons Machine Specifications Lift capacity Height, working maximum AWP-20S, 25S, 30S, 36S 350 lbs/159 kg AWP-20S 26 ft 1 in/8.0 m AWP-40S 300 lbs/136 kg AWP-25S 30 ft 9 in/9.4 m Power source AWP-30S 35 ft 6 in/10.8 m. However, continuous improvement of our products is a Genie policy
Source: www.wellbuiltequipment.com 2024 Genie AWP30S DC For Sale New WellBuilt Equipment , as specified in this manual and the Genie AWP Super Series service manual We have 2 Genie AWP-30S manuals available for free PDF download: Operator's Manual
Source: www.pinterest.com Genie AWP 30S Platform Work platform, Genies, Aerial , AWP-25S 350 lbs 159 kg AWP-30S 350 lbs 159 kg AWP-36S 350 lbs 159 kg AWP-40S 300 lbs 136 kg Maximum occupancy 1 person Fall Hazards The guard rail system The only warranty applicable to our equipment is the standard written.
Source: www.genielift.com Genie® AWP®30S Super Series Aerial Work Platform , Following updated procedures and simplified intervals, the new Genie maintenance instructions provide rental store owners the flexibility needed to keep their. AWP Super Series 114002 lifting systems pdf manual download
Source: www.speedyservices.com Genie AWP30S Aerial Work Platform 9m SWL Speedy Hire , The Genie AWP-30S is a versatile and reliable aerial work platform that offers a maximum working height of 30 feet (9.14 meters) and a maximum platform capacity of 350 lbs (159 kg) Also for: Awp super series, Awp-20s, Awp-25s, Awp-30s, Awp-36s, Awp-40s
Source: rental-world.com Lift Genie 30’ Personnel Model AWP™30S RentalWorld , as specified in this manual and the Genie AWP service manual Be sure all maintenance has been performed as specified in this manual and the Genie AWP Bodily Injury Hazard.
ELEVADOR GENIE AWP30S Proveedora Cortez . AWP-25S 350 lbs 159 kg AWP-30S 350 lbs 159 kg AWP-36S 350 lbs 159 kg AWP-40S 300 lbs 136 kg Maximum occupancy 1 person Fall Hazards The guard rail system instructions in the Operator's Manual may result in serious injury or death
Genie Awp 114002 Users Manual 114002c31 . Genie has endeavored to deliver the highest degree of accuracy possible Fifth Edition • First Printing Operator's Manual Specifications Specific ati ons Machine Specifications Lift capacity Height, working maximum AWP-20S, 25S, 30S, 36S 350 lbs/159 kg AWP-20S 26 ft 1 in/8.0 m AWP-40S 300 lbs/136 kg AWP-25S 30 ft 9 in/9.4 m Power source AWP-30S 35 ft 6 in/10.8 m.